Capannone in vendita

Secugnago, Via Vittorio Veneto
€ 620.000
27 locali 27 locali
1415 Mq 1415 Mq
6 bagni 6 bagni

Capannone in vendita

Secugnago, Via Vittorio Veneto

Questo immobile appartiene ad un'unitĂ  principale con metratura piĂš ampia

Descrizione annuncio

COSA SAPERE DELL'IMMOBILE

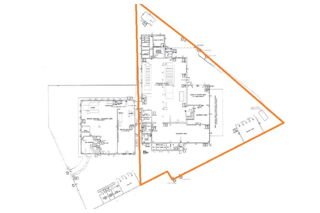
Il capannone proposto in vendita dispone di una superficie totale di circa 1.415 metri quadrati interni, di cui 97 metri quadrati circa adibiti a magazzino e 331 metri quadrati ad ufficio, con annessa un'area esterna privata e recintata di circa 1.000 metri quadrati.

Si specifica che la proprietĂ  valuta l'opzione di affitto con riscatto.

DESCRIZIONE E PARTICOLARITA'

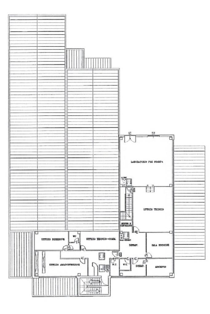
La soluzione, avente metratura complessiva di 1.415 metri quadrati, si trova cosĂŹ suddivisa tra piano terra e piano primo:

- Il capannone, avente pilastri, possiede una superficie di circa 900 metri quadrati, il tutto disposto interamente al piano terra lungo due campate;

- A seguire, sempre al piano terra, troviamo circa 97 metri quadrati di magazzino e ben tre servizi igienici privati;

- I restanti 331 metri quadrati sono collocati al piano primo, utilizzati come spazio direzionale, completi di tre ulteriori servizi igienici privati.

Il capannone gode di tutti gli impianti necessari quali riscaldamento e condizionamento (ambedue centralizzati), nonché d’impiantistica elettrica, di videosorveglianza, d’illuminazione e d’allarme; dispone poi di un sistema antincendio composto da antincendio a idranti e a pioggia, porta tagliafuoco, rilevatori antincendio, luci e relativa uscita d’emergenza. L’ingresso può avvenire mediante due portoni di altezza circa 4,2 metri mentre internamente la struttura raggiunge un’altezza di 4,4 metri con un’altezza sotto trave di 3,3 metri circa. Esternamente la soluzione presenta circa 1.000 metri quadrati di area privata e recintata mediante cancello completo di due accessi carrai e due passi carrai. La proprietà risulta possedere tetto in eternit ed essere in buono stato data la parziale ristrutturazione avvenuta quest’anno.

Si specifica che la proprietĂ  valuta l'opzione di affitto con riscatto.

UBICAZIONE E CONTESTO

La costruzione sorge nel Comune di Secugnago (LO), possiede circa cinque posti auto PRIVATI e venti posti auto PUBBLICI nelle immediate VICINANZE ed è facilmente raggiungibile in auto mediante la strada statale 9 (SS9 – Via Emilia), la quale collega ai paesi limitrofi.

Si specifica che la proprietĂ  valuta l'opzione di affitto con riscatto.

Mostra tutto

Nelle vicinanze

Trasporto pubblico Trasporto pubblico
stazione di Secugnago
stazione di Secugnago
930 m
Trasporto pubblico
2,4 Km
Scuole Scuole
Scuole
110 m
Farmacia Farmacia
Farmacia
160 m
Supermercati Supermercati
Supermercati
2,6 Km
Negozi Negozi
Negozi
2,4 Km
Pane Pasta
2,5 Km
Ristoranti Ristoranti
Il Giardino
2,9 Km
Pappa e Ciccia
2,9 Km
Mostra tutto

Caratteristiche

Rif.:
61125387
Piano:
Terra di 2
Totale piani:
2
Posti auto:
20
Condizionamento:
Centralizzato
Ascensore:
No
Mostra tutto
Prezzo Prezzo
€ 620.000
Rata mutuo Rata mutuo
€ 2.923 / mese
Spese annue Spese annue
€ 0
Proponi il tuo prezzoProponi il tuo prezzo

Classe Energetica

G
G
G
G
G
G
G
G
G
EP globale non rinnovabile:
260.57 kW h/m² anno
EP globale rinnovabile:
260.57 kW h/m² anno
EP invernale del fabbricato:
EP estiva del fabbricato:
Anno di costruzione:
1980
Riscaldamento:
Centralizzato
Tipo impianto:
A radiatori
Tipo alimentazione:
Aria

Ti interessa visionare l'immobile?

Fissa un appuntamento  Fissa un appuntamento

Richiedi informazioni

Clicca su Leggi per aprire l'informativa
* Questi campi sono obbligatori

Calcola il tuo mutuo

Semplice e senza impegno
Anticipo

( % )
Mutuo

( % )

pochi semplici passi

inserisci i tuoi dati
Questionario completato
Grazie per aver richiesto un appuntamento senza impegno con un nostro Consulente del Credito e Assicurativo.

Hai inserito correttamente tutti i dati necessari e a breve riceverai una e-mail con un link da convalidare per inviare i tuoi dati.
Affiliato
Avanguardia Industriale Srl
P.zza Don Luigi Savarè, 1 26900 Lodi (LO)

Il nostro staff


  • Lorenzo Alloni
    Collaboratore

  • Nicole Moretti
    Collaboratrice

  • Diana Viorica Polgar
    Collaboratrice

  • Alexandru George Receanu
    Affiliato

  • Deborah Ragusa
    Coordinatrice

  • Erasmo Jesus Silva Quiroz
    Collaboratore

  • Manuel Tonelli
    Collaboratore
P.zza Don Luigi Savarè, 1 26900 Lodi (LO)
Zona: Lodi
Mostra su mappa
Affiliato
Avanguardia Industriale Srl
P.zza Don Luigi Savarè, 1 26900 Lodi (LO)

2026 Tecnocasa Franchising S.p.A. - P. IVA 08365160152 - Via Monte Bianco 60/A 20089 Rozzano (MI). Ogni agenzia ha un proprio titolare ed è autonoma. Privacy policy | Policy utilizzo | Cookie policy