Capannone in vendita

Offanengo, Strada Provinciale 235
€ 650.000
7 locali 7 locali
1150 Mq 1150 Mq
5 bagni 5 bagni

Capannone in vendita

Offanengo, Strada Provinciale 235

Descrizione annuncio

INFORMAZIONI PRINCIPALI

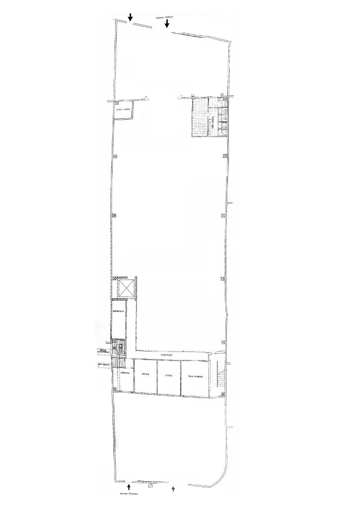
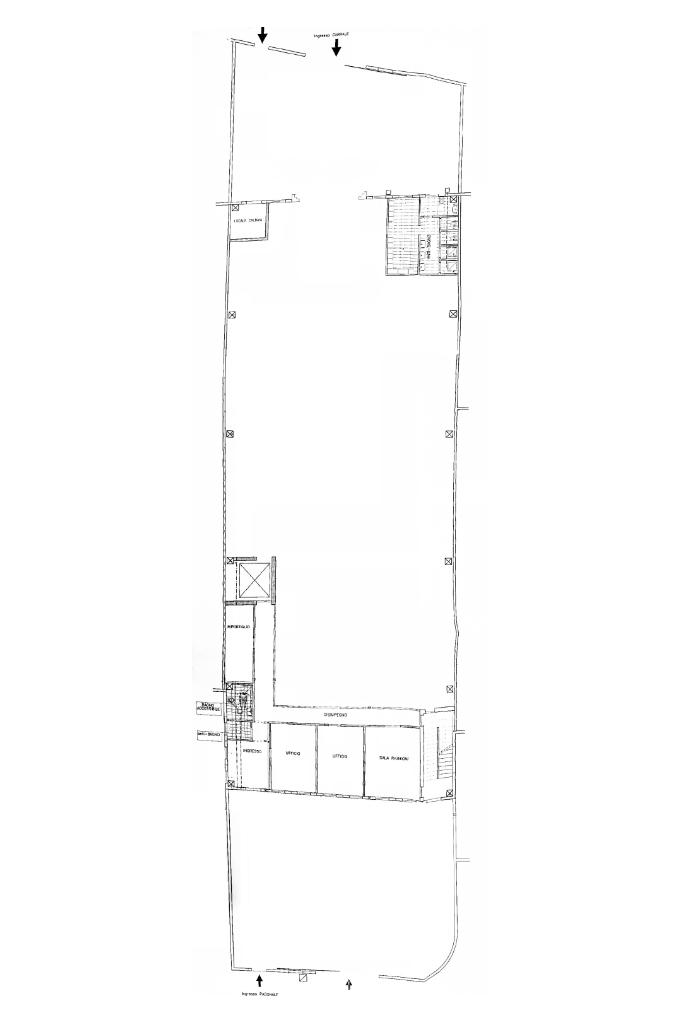
Il capannone proposto in vendita possiede una superficie interna di circa 1.150 metri quadrati con annessa un'area esterna privata e recintata di 440 metri quadrati circa.

Si specifica che l’immobile sarà disponibile a partire da un mese dopo la firma del preliminare.

DESCRIZIONE & PARTICOLARITÀ

L'immobile in vendita possiede una metratura complessiva di circa 1.150 metri quadrati, il tutto suddiviso su due livelli cosĂŹ distribuiti:

- Al piano terra troviamo circa 840 metri quadrati di capannone, di cui 800 metri quadrati di spazio commerciale e due locali adibiti ad uffici, disposto interamente al piano terra lungo un'unica campata con annessi quattro servizi igienici privati, di cui due a norma disabili, completi di mensa, area spogliatoio e comode docce;

- Al piano primo, raggiungibile mediante scale, sono presenti circa 310 metri quadrati di magazzino con locale ripostiglio e un servizio igienico privato a norma disabili.

L'ingresso può avvenire mediante portone d’accesso di altezza 4,5 metri mentre internamente la struttura, libera da pilastri, raggiunge un'altezza di 7 metri circa con un’altezza sottotrave di circa 6,5 metri. Il complesso è dotato di riscaldamento e condizionamento (ambedue autonomi), nonché d’impiantistica elettrica, d’illuminazione e d’allarme; completa la soluzione un sistema antincendio composto da antincendio ad idranti e illuminazione d’emergenza. Esternamente la struttura possiede circa 440 metri quadrati di area privata e recintata mediante un cancello di 5 metri, completo di due accessi carrai e ulteriori due passi carrai. La proprietà risulta essere a norma per l’accesso disabili.

Si specifica che l’immobile sarà disponibile a partire da un mese dopo la firma del preliminare.

UBICAZIONE & COLLEGAMENTI

L’edificio sorge nella zona industriale del Comune di Offanengo (CR), gode di circa cento posti auto PUBBLICI nelle immediate VICINANZE ed è facilmente raggiungibile in auto mediante la strada provinciale 235 (SP235).

Si specifica che l’immobile sarà disponibile a partire da un mese dopo la firma del preliminare.

Mostra tutto

Nelle vicinanze

Trasporto pubblico Trasporto pubblico
Trasporto pubblico
1,4 Km
linea K212
linea K212
2,4 Km
Scuole Scuole
Scuola Primaria Alessandro Manzoni
1,2 Km
Scuola Secondaria di Primo Grado Dante Alighieri
1,3 Km
Scuole
2,7 Km
Farmacia Farmacia
De Maestri
2,5 Km
Farmacia Caffi
2,5 Km
Supermercati Supermercati
LD
1,2 Km
La Bottega Naturale
1,4 Km
Conad
1,4 Km
SMA
1,4 Km
Negozi Negozi
Tessilmania
1,2 Km
Panettiere Mordenti
2,3 Km
Negozi
2,5 Km
Bar Bar
Centrale
1,1 Km
Paola
1,2 Km
Bar Italia
2,3 Km
Caffè dei Portici
2,3 Km
Bar Bagianni
2,4 Km
Ristoranti Ristoranti
Ristorante Pizzeria CiccÏ Coccò
1,8 Km
Nonna Dina
1,9 Km
W22
2,2 Km
Ristorante Pizzeria Harlem
2,2 Km
Pizzeria D'Asporto Cleopatra
2,4 Km
Mostra tutto

Caratteristiche

Rif.:
61200801
Piano:
Su piĂš livelli di 2
Totale piani:
2
Posti auto:
99
Condizionamento:
Autonomo
Ascensore:
No
Mostra tutto
Prezzo Prezzo
€ 650.000
Rata mutuo Rata mutuo
€ 3.064 / mese
Spese annue Spese annue
€ 1.300
Proponi il tuo prezzoProponi il tuo prezzo

Classe Energetica

Questo immobile è esente da classe energetica
Anno di costruzione:
2001
Riscaldamento:
Autonomo
Tipo impianto:
Ad aria
Tipo alimentazione:
Aria

Ti interessa visionare l'immobile?

Fissa un appuntamento  Fissa un appuntamento

Richiedi informazioni

Clicca su Leggi per aprire l'informativa
* Questi campi sono obbligatori

Calcola il tuo mutuo

Semplice e senza impegno
Anticipo

( % )
Mutuo

( % )

pochi semplici passi

inserisci i tuoi dati
Questionario completato
Grazie per aver richiesto un appuntamento senza impegno con un nostro Consulente del Credito e Assicurativo.

Hai inserito correttamente tutti i dati necessari e a breve riceverai una e-mail con un link da convalidare per inviare i tuoi dati.
Affiliato
Avanguardia Industriale Srl
P.zza Don Luigi Savarè, 1 26900 Lodi (LO)

Il nostro staff


  • Lorenzo Alloni
    Collaboratore

  • Nicole Moretti
    Collaboratrice

  • Diana Viorica Polgar
    Collaboratrice

  • Alexandru George Receanu
    Affiliato

  • Deborah Ragusa
    Coordinatrice

  • Erasmo Jesus Silva Quiroz
    Collaboratore

  • Manuel Tonelli
    Collaboratore
P.zza Don Luigi Savarè, 1 26900 Lodi (LO)
Zona: Lodi
Mostra su mappa
Affiliato
Avanguardia Industriale Srl
P.zza Don Luigi Savarè, 1 26900 Lodi (LO)

2026 Tecnocasa Franchising S.p.A. - P. IVA 08365160152 - Via Monte Bianco 60/A 20089 Rozzano (MI). Ogni agenzia ha un proprio titolare ed è autonoma. Privacy policy | Policy utilizzo | Cookie policy