Capannone in vendita

Offanengo, Via Circonvallazione Sud
€ 695.000
5 locali 5 locali
2300 Mq 2300 Mq
12 bagni 12 bagni

Capannone in vendita

Offanengo, Via Circonvallazione Sud

Descrizione annuncio

COSA SAPERE DELL'IMMOBILE

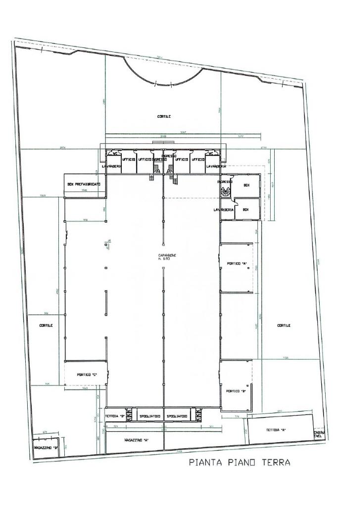
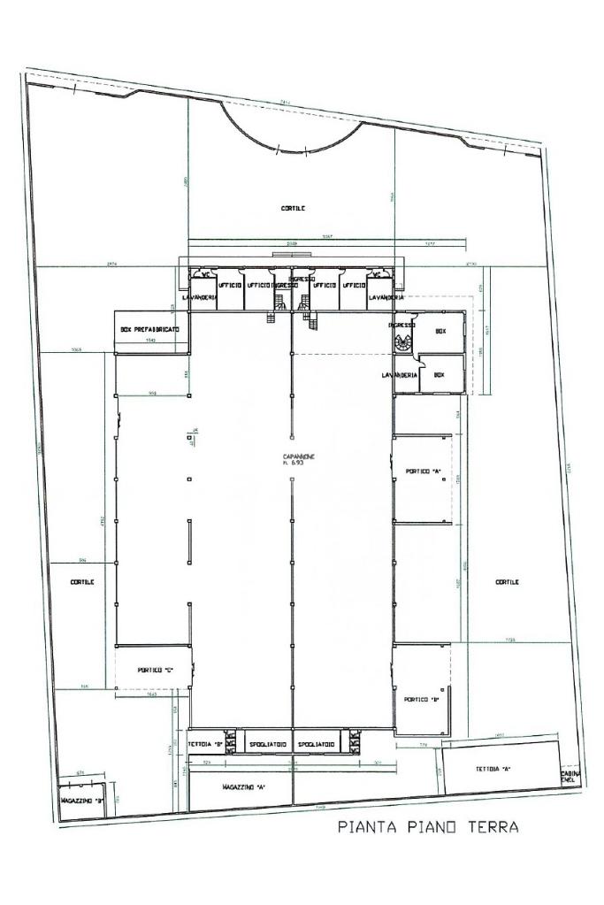
Il capannone proposto in vendita possiede una superficie interna di circa 2.300 metri quadrati con annessa un'area esterna privata e recintata di circa 4.000 metri quadrati.

DESCRIZIONE E PARTICOLARITA'

La soluzione, avente una metratura complessiva di 2.300 metri quadrati, si presenta così distribuita:

- Al piano terra la superficie industriale è ripartita su tre locali con annessi sei servizi igienici privati. L’ingresso può avvenire mediante quattro portoni d’accesso di altezza 5,5 metri mentre internamente la struttura, avente pilastri, raggiunge un’altezza di 8,5 metri con un’altezza sotto trave di 7 metri circa;

- Al piano terra sono presenti circa 250 metri quadrati adibiti a spazio direzionale, suddivisi in quattro locali;

- Sullo stesso livello troviamo poi circa 153 metri quadrati di magazzino, su due locali separati disposti nella parte posteriore dell’immobile;

- Infine, al piano primo, sono presenti tre abitazioni, ciascuno completo di tre camere da letto, soggiorno, cucina abitabile e due servizi igienici privati, per un totale di circa 400 metri quadrati.

Il capannone è dotato d’impiantistica elettrica e d’illuminazione, risulta poi possedere una predisposizione sia per l’impianto di riscaldamento sia condizionamento; completa la soluzione la portineria. Esternamente l’immobile gode di circa 4.000 metri quadrati di area privata e recintata mediante un cancello con annessi un accesso carraio e relativo passo carraio. La proprietà risulta possedere tetto in eternit.

UBICAZIONE E CONTESTO

La costruzione sorge nel Comune di Offanengo (CR), possiede circa tre posti auto PRIVATI nelle immediate VICINANZE ed è facilmente raggiungibile in auto mediante la strada provinciale 235 (SP235), la quale collega ai paesi limitrofi.

Mostra tutto

Nelle vicinanze

Trasporto pubblico Trasporto pubblico
Trasporto pubblico
1,2 Km
linea K212
linea K212
2,5 Km
Scuole Scuole
Scuola Primaria Alessandro Manzoni
1,7 Km
Scuola Secondaria di Primo Grado Dante Alighieri
1,8 Km
Scuole
2,7 Km
Farmacia Farmacia
Farmacia Caffi
2,0 Km
De Maestri
2,5 Km
Supermercati Supermercati
LD
1,7 Km
La Bottega Naturale
1,9 Km
Conad
1,9 Km
SMA
1,9 Km
Negozi Negozi
Tessilmania
1,7 Km
Panettiere Mordenti
1,8 Km
Negozi
2,6 Km
Bar Bar
Centrale
1,6 Km
Paola
1,7 Km
Bar Italia
1,8 Km
Caffè dei Portici
1,8 Km
Sister's Bar
2,5 Km
Ristoranti Ristoranti
Nonna Dina
1,4 Km
Ristorante Pizzeria Harlem
1,7 Km
Pizzeria D'Asporto Cleopatra
1,9 Km
Ristorante Pizzeria Ciccì Coccò
2,3 Km
W22
2,7 Km
Mostra tutto

Caratteristiche

Rif.:
61113077
Piano:
Terra di 2
Totale piani:
2
Posti auto:
3
Condizionamento:
Predisposizione impianto
Ascensore:
No
Mostra tutto
Prezzo Prezzo
€ 695.000
Rata mutuo Rata mutuo
€ 3.239 / mese
Spese annue Spese annue
€ 0
Proponi il tuo prezzoProponi il tuo prezzo

Classe Energetica

Questo immobile è esente da classe energetica
Anno di costruzione:
1990
Riscaldamento:
Assente

Ti interessa visionare l'immobile?

Fissa un appuntamento  Fissa un appuntamento

Richiedi informazioni

Clicca su Leggi per aprire l'informativa
* Questi campi sono obbligatori

Calcola il tuo mutuo

Semplice e senza impegno
Anticipo

( % )
Mutuo

( % )

pochi semplici passi

inserisci i tuoi dati
Questionario completato
Grazie per aver richiesto un appuntamento senza impegno con un nostro Consulente del Credito e Assicurativo.

Hai inserito correttamente tutti i dati necessari e a breve riceverai una e-mail con un link da convalidare per inviare i tuoi dati.
Affiliato
Avanguardia Industriale Srl
P.zza Don Luigi Savarè, 1 26900 Lodi (LO)

Il nostro staff


  • Nicole Moretti
    Collaboratrice

  • Alexandru George Receanu
    Affiliato

  • Deborah Ragusa
    Coordinatrice

  • Tommaso Solaro
    Collaboratore

  • Erasmo Jesus Silva Quiroz
    Collaboratore
P.zza Don Luigi Savarè, 1 26900 Lodi (LO)
Zona: Lodi
Mostra su mappa
Affiliato
Avanguardia Industriale Srl
P.zza Don Luigi Savarè, 1 26900 Lodi (LO)

2025 Tecnocasa Franchising S.p.A. - P. IVA 08365160152 - Via Monte Bianco 60/A 20089 Rozzano (MI). Ogni agenzia ha un proprio titolare ed è autonoma. Privacy policy | Policy utilizzo | Cookie policy