Ufficio in vendita

Lodi, Via Secondo Cremonesi
€ 1.000.000
19 locali 19 locali
680 Mq 680 Mq
8 bagni 8 bagni

Ufficio in vendita

Lodi, Via Secondo Cremonesi

Questo immobile dispone di soluzioni frazionate

Descrizione annuncio

COSA SAPERE DELL'IMMOBILE

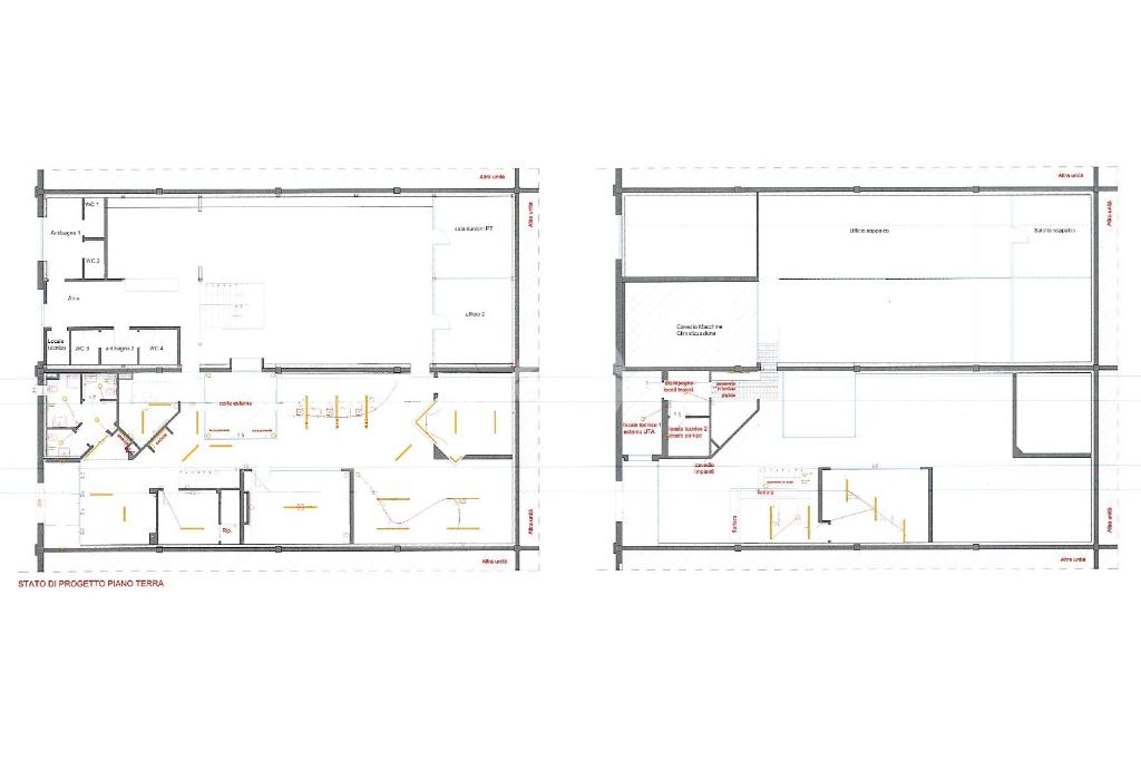
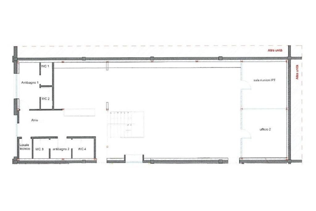
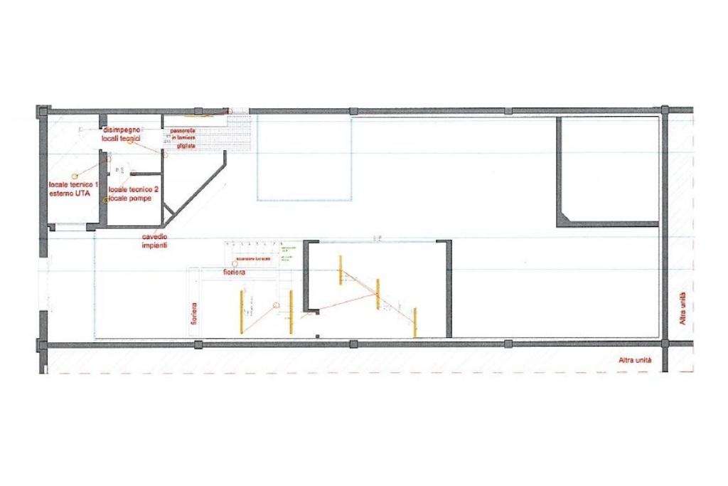
L'ufficio proposto in vendita possiede una superficie di circa 680 metri quadrati, distribuiti su due piani.

DESCRIZIONE E PARTICOLARITA'

L'immobile misura complessivamente 680 metri quadrati, distribuiti su due livelli di un edificio di due piani, il quale risulta possedere portineria ed essere a norma per l'accesso disabili. Internamente lo stabile possiede un’altezza massima di 5,50 metri e una minima di 2,20 metri, presenta più di quindici locali e ben otto servizi igienici privati, di cui tre a norma disabili. L'ufficio dispone di riscaldamento e condizionamento (ambedue autonomi), impiantistica elettrica e d'illuminazione, nonché di impianto d’allarme; completa la soluzione un sistema antincendio composto da antincendio a idranti, luci e uscita d’emergenza. L’immobile presenta internet a banda larda e risulta essere cablato; grazie alla recente ristrutturazione avvenuta nell’anno 2025 l’ufficio si presenta in un ottimo stato d’uso.

UBICAZIONE E CONTESTO

Lo stabile sorge nel Comune di Lodi (LO) e possiede circa cinquanta posti auto PUBBLICI e due posti auto PRIVATI, nonché un parcheggio bici, nelle immediate VICINANZE; risulta infine facilmente raggiungibile tramite mezzi pubblici grazie alla vicinanza con la stazione ferroviaria di Lodi e alle numerose fermate dell'autobus.

Mostra tutto

Nelle vicinanze

Trasporto pubblico Trasporto pubblico
stazione di Lodi
stazione di Lodi
870 m
Via Secondo Cremonesi 13 (Zona Industriale)
Via Secondo Cremonesi 13 (Zona Industriale)
160 m
Corso Mazzini 63
Corso Mazzini 63
170 m
Ricariche auto elettriche Ricariche auto elettriche
Negozio Enel di LODI | EnelX
430 m
COOP Lodi
1,9 Km
Scuole Scuole
Scuola media Ada Negri
340 m
Scuole
360 m
Collegio Scaglioni
420 m
Istituto magistrale Maffeo Vegio
450 m
Scuole diocesane
540 m
Farmacia Farmacia
Gastaldi
540 m
Giberti
680 m
Belloni
740 m
Manfrini
770 m
Barbieri - Dottor Storti
820 m
Ospedali Ospedali
Ospedale Vecchio
630 m
Ospedale Maggiore
720 m
Supermercati Supermercati
Eurospin
490 m
Carrefour
570 m
A&O
580 m
MD
700 m
Penny
930 m
Negozi Negozi
Negozi
140 m
Nuova Tendenza
190 m
Bakery & Cupcakery
340 m
Maffoni
420 m
United Colors of Benetton
570 m
Bar Bar
New Bar
570 m
Yoamo
700 m
Officine Adda
760 m
ART café
1,4 Km
Cantiere N7
2,3 Km
Ristoranti Ristoranti
Calicantus Food
190 m
Il Gattino
330 m
Pizzeria Armandino
380 m
Dal Baffo
420 m
La Petite Mondina
630 m
Mostra tutto

Caratteristiche

Rif.:
61148202
Piano:
Su più livelli di 1
Totale piani:
1
Posti auto:
50
Condizionamento:
Autonomo
Ascensore:
No
Mostra tutto
Prezzo Prezzo
€ 1.000.000
Rata mutuo Rata mutuo
€ 4.714 / mese
Spese annue Spese annue
€ 1.500
Proponi il tuo prezzoProponi il tuo prezzo

Classe Energetica

Questo immobile è esente da classe energetica
Anno di costruzione:
1960
Riscaldamento:
Autonomo
Tipo impianto:
Ad aria
Tipo alimentazione:
Aria

Ti interessa visionare l'immobile?

Fissa un appuntamento  Fissa un appuntamento

Richiedi informazioni

Clicca su Leggi per aprire l'informativa
* Questi campi sono obbligatori

Calcola il tuo mutuo

Semplice e senza impegno
Anticipo

( % )
Mutuo

( % )

pochi semplici passi

inserisci i tuoi dati
Questionario completato
Grazie per aver richiesto un appuntamento senza impegno con un nostro Consulente del Credito e Assicurativo.

Hai inserito correttamente tutti i dati necessari e a breve riceverai una e-mail con un link da convalidare per inviare i tuoi dati.
Affiliato
Avanguardia Industriale Srl
P.zza Don Luigi Savarè, 1 26900 Lodi (LO)

Il nostro staff


  • Lorenzo Alloni
    Collaboratore

  • Nicole Moretti
    Collaboratrice

  • Diana Viorica Polgar
    Collaboratrice

  • Alexandru George Receanu
    Affiliato

  • Deborah Ragusa
    Coordinatrice

  • Erasmo Jesus Silva Quiroz
    Collaboratore

  • Manuel Tonelli
    Collaboratore
P.zza Don Luigi Savarè, 1 26900 Lodi (LO)
Zona: Lodi
Mostra su mappa
Affiliato
Avanguardia Industriale Srl
P.zza Don Luigi Savarè, 1 26900 Lodi (LO)

2026 Tecnocasa Franchising S.p.A. - P. IVA 08365160152 - Via Monte Bianco 60/A 20089 Rozzano (MI). Ogni agenzia ha un proprio titolare ed è autonoma. Privacy policy | Policy utilizzo | Cookie policy