Ufficio in affitto

Lodi, Via Nino dall'Oro
€ 950 / mese
2 locali 2 locali
60 Mq 60 Mq
1 bagno 1 bagno

Ufficio in affitto

Lodi, Via Nino dall'Oro

Descrizione annuncio

INFORMAZIONI PRINCIPALI

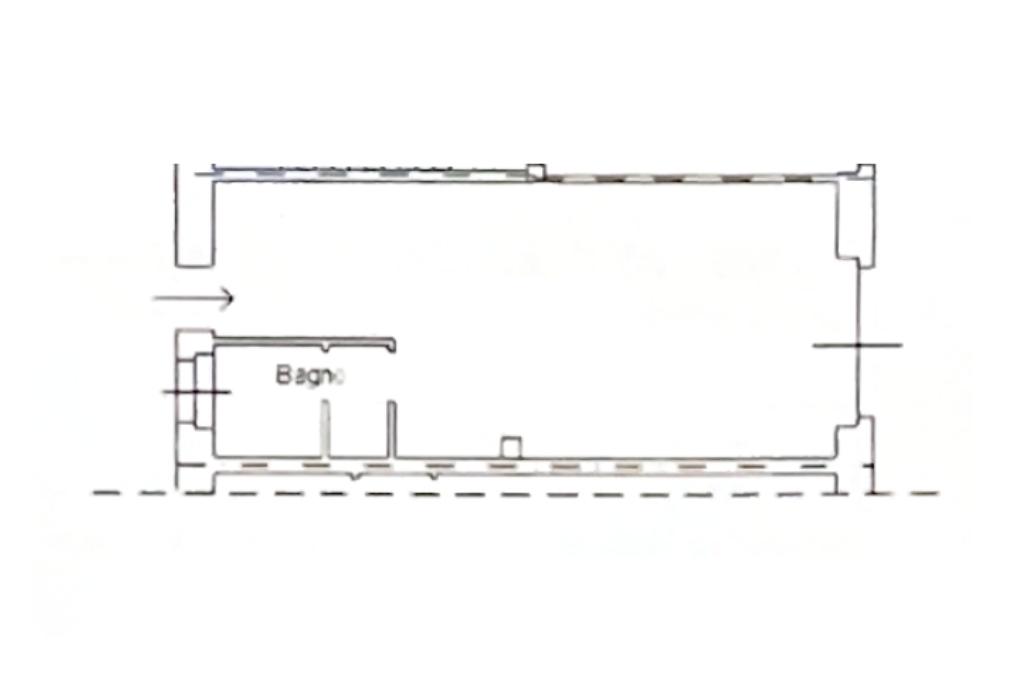
L'ufficio proposto in locazione possiede una metratura complessiva di 60 metri quadrati circa, di cui circa 15 metri quadrati adibiti a cantina al piano primo interrato, distribuiti su un edificio di due livelli.

L’ufficio è disponibile da subito e offre la possibilità di affittare un box auto su richiesta.

DESCRIZIONE & PARTICOLARITÀ

L'immobile, a norma per l'accesso disabili, sviluppa la sua superficie interna di circa 60 metri quadrati al piano terra, suddivisa in due locali con annesso un comodo servizio igienico privato. L’ufficio è dotato di comodo doppio ingresso: uno principale fronte strada con vetrina, la quale garantisce visibilità e luminosità agli ambienti interni, e un secondo accesso sul retro tramite porta blindata. Internamente la struttura raggiunge un'altezza di circa 3,5 metri, data la presenza di controsoffitto, e presenta una pavimentazione con rifiniture in piastrelle. L'immobile dispone di riscaldamento e climatizzazione, ambedue autonomi, di elettricità, d’illuminazione e di una predisposizione per l’impianto d’allarme. Completa la soluzione un sistema antincendio composto da rilevatori di fumo, antincendio a idranti, illuminazione d’emergenza e uscita di sicurezza. La proprietà risulta inoltre essere cablata e disporre di internet a banda larga.

L’ufficio è disponibile da subito e offre la possibilità di affittare un box auto su richiesta.

UBICAZIONE & COLLEGAMENTI

L'ufficio sorge in un contesto residenziale ben servito del Comune di Lodi (LO), è infatti facilmente raggiungibile sia mediante mezzi pubblici, grazie alla stazione ferroviaria di Lodi e alle numerose fermate dell’autobus a pochi minuti a piedi dall’immobile, sia tramite auto mediante la strada statale 9 (SS9 – Via Emilia); infine, nelle immediate VICINANZE, è possibile trovare circa venti posti auto PUBBLICI.

L’ufficio è disponibile da subito e offre la possibilità di affittare un box auto su richiesta.

Mostra tutto

Nelle vicinanze

Trasporto pubblico Trasporto pubblico
stazione di Lodi
stazione di Lodi
160 m
Trasporto pubblico
160 m
Lodi stazione FS (Lucky bar)
Lodi stazione FS (Lucky bar)
190 m
Ricariche auto elettriche Ricariche auto elettriche
Negozio Enel di LODI | EnelX
1,0 Km
COOP Lodi
1,3 Km
Scuole Scuole
Scuole
120 m
Scuola Secondaria I grado “F. Cazzulani”
150 m
Liceo artistico Callisto Piazza
260 m
ITCG Agostino Bassi
300 m
Istituto sperimentale lattiero-caseario
330 m
Farmacia Farmacia
Comunale N. 4
400 m
Belloni
480 m
Gastaldi
500 m
Giberti
540 m
Farmacia comunale n. 1
550 m
Ospedali Ospedali
Ospedale Vecchio
860 m
Ospedale Maggiore
1,1 Km
Supermercati Supermercati
A&O
170 m
MD
450 m
Penny
550 m
Conad
650 m
Punto Simply
830 m
Negozi Negozi
Chic Moda
130 m
Il Forno
170 m
L'Outlet della Convenienza
280 m
West Store
340 m
San Lorenzo
360 m
Bar Bar
Officine Adda
440 m
Yoamo
470 m
ART café
710 m
New Bar
720 m
Cantiere N7
1,8 Km
Ristoranti Ristoranti
La Delizia Piadineria
290 m
Due Agnelli
300 m
Castello
360 m
La fortuna
370 m
Pizzeria Armandino
430 m
Mostra tutto

Caratteristiche

Rif.:
61189313
Piano:
Su più livelli di 2
Totale piani:
2
Posti auto:
20
Condizionamento:
Autonomo
Ascensore:
No
Mostra tutto
Prezzo Prezzo
€ 950 / mese
Spese annue Spese annue
€ 200

Classe Energetica

Questo immobile è esente da classe energetica
Anno di costruzione:
2000
Riscaldamento:
Autonomo
Tipo impianto:
Ad aria
Tipo alimentazione:
Aria

Ti interessa visionare l'immobile?

Fissa un appuntamento  Fissa un appuntamento

Richiedi informazioni

Clicca su Leggi per aprire l'informativa
* Questi campi sono obbligatori
Affiliato
Avanguardia Industriale Srl
P.zza Don Luigi Savarè, 1 26900 Lodi (LO)

Il nostro staff


  • Lorenzo Alloni
    Collaboratore

  • Nicole Moretti
    Collaboratrice

  • Diana Viorica Polgar
    Collaboratrice

  • Alexandru George Receanu
    Affiliato

  • Deborah Ragusa
    Coordinatrice

  • Erasmo Jesus Silva Quiroz
    Collaboratore

  • Manuel Tonelli
    Collaboratore
P.zza Don Luigi Savarè, 1 26900 Lodi (LO)
Zona: Lodi
Mostra su mappa
Affiliato
Avanguardia Industriale Srl
P.zza Don Luigi Savarè, 1 26900 Lodi (LO)

2026 Tecnocasa Franchising S.p.A. - P. IVA 08365160152 - Via Monte Bianco 60/A 20089 Rozzano (MI). Ogni agenzia ha un proprio titolare ed è autonoma. Privacy policy | Policy utilizzo | Cookie policy