Negozio in vendita

Lodi Vecchio, Viale della Repubblica
1 locale 1 locale
800 Mq 800 Mq
5 bagni 5 bagni

Negozio in vendita

Lodi Vecchio, Viale della Repubblica

Descrizione annuncio

COSA SAPERE DELL'IMMOBILE

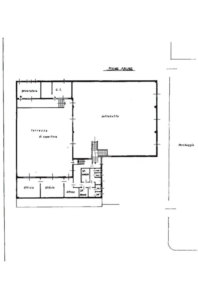
Proponiamo in vendita un locale commerciale, avente superficie interna di circa 800 metri quadrati, con annessa un'area esterna privata di circa 50 metri quadrati.

DESCRIZIONE E PARTICOLARITA'

Il lotto complessivo misura circa 800 metri quadrati, di cui 55 metri quadrati adibiti a magazzino, il tutto distribuito su due piani di un edificio di due livelli. Internamente la struttura raggiunge un’altezza di circa 6 metri e possiede ben cinque servizi igienici privati, di cui uno al piano terra e i restanti quattro al piano primo. La zona destinata alla vendita, situata all’interno del capannone commerciale, si configura come un ampio open space che, grazie alle quattro vetrine fronte strada, gode di un’eccellente luminosità naturale e di grande visibilità alla clientela, creando un ambiente interno accogliente e funzionale. L'immobile è dotato di riscaldamento e condizionamento (ambedue autonomi), nonché di impiantistica elettrica e d’illuminazione. Il negozio dispone infine di un sistema antincendio composto da rilevatori antincendio, antincendio a idranti, luci e uscita d’emergenza. Esternamente allo stabile troviamo circa 50 metri quadrati di area privata adibito a parcheggio e/o scarico e carico merci. La proprietà risulta essere a norma per l’accesso disabili.

UBICAZIONE E CONTESTO

Il negozio è ubicato nella zona residenziale del comune di Lodi Vecchio (LO) e possiede circa venti posti auto PUBBLICI nelle immediate VICINANZE e circa venticinque posti auto PRIVATI.

La soluzione risulta infine facilmente raggiungibile in auto mediante la strada provinciale 140 (SP140), la quale collega ai paesi limitrofi.

Mostra tutto

Nelle vicinanze

Trasporto pubblico Trasporto pubblico
stazione di Tavazzano
stazione di Tavazzano
2,9 Km
Scuole Scuole
Scuola Elementare "Ada Negri"
450 m
Scuola Media "Antonio Gramsci"
500 m
Gramsci
540 m
Scuola Primaria Don Lorenzo Milani
3,0 Km
Farmacia Farmacia
Farmacia
450 m
Supermercati Supermercati
Supermercati
10 m
Crai
680 m
Lidl
860 m
Bar Bar
A.R.C.I. I Maggio
610 m
Bar Dosso
670 m
Mostra tutto

Caratteristiche

Rif.:
61180964
Piano:
Su piĂš livelli di 2
Totale piani:
2
Posti auto:
25
Condizionamento:
Autonomo
Ascensore:
No
Mostra tutto
Prezzo Prezzo
€ 770.000
Rata mutuo Rata mutuo
€ 3.630 / mese
Spese annue Spese annue
€ 0
Anche in affitto a
Proponi il tuo prezzoProponi il tuo prezzo

Classe Energetica

Questo immobile è esente da classe energetica
Anno di costruzione:
1980
Riscaldamento:
Autonomo
Tipo impianto:
Ad aria
Tipo alimentazione:
Aria

Ti interessa visionare l'immobile?

Fissa un appuntamento  Fissa un appuntamento

Richiedi informazioni

Clicca su Leggi per aprire l'informativa
* Questi campi sono obbligatori

Calcola il tuo mutuo

Semplice e senza impegno
Anticipo

( % )
Mutuo

( % )

pochi semplici passi

inserisci i tuoi dati
Questionario completato
Grazie per aver richiesto un appuntamento senza impegno con un nostro Consulente del Credito e Assicurativo.

Hai inserito correttamente tutti i dati necessari e a breve riceverai una e-mail con un link da convalidare per inviare i tuoi dati.
Affiliato
Avanguardia Industriale Srl
P.zza Don Luigi Savarè, 1 26900 Lodi (LO)

Il nostro staff


  • Lorenzo Alloni
    Collaboratore

  • Nicole Moretti
    Collaboratrice

  • Diana Viorica Polgar
    Collaboratrice

  • Alexandru George Receanu
    Affiliato

  • Deborah Ragusa
    Coordinatrice

  • Erasmo Jesus Silva Quiroz
    Collaboratore

  • Manuel Tonelli
    Collaboratore
P.zza Don Luigi Savarè, 1 26900 Lodi (LO)
Zona: Lodi
Mostra su mappa
Affiliato
Avanguardia Industriale Srl
P.zza Don Luigi Savarè, 1 26900 Lodi (LO)

2026 Tecnocasa Franchising S.p.A. - P. IVA 08365160152 - Via Monte Bianco 60/A 20089 Rozzano (MI). Ogni agenzia ha un proprio titolare ed è autonoma. Privacy policy | Policy utilizzo | Cookie policy