Capannone in vendita

Lodi Vecchio, Via Europa
€ 140.000
2 locali 2 locali
450 Mq 450 Mq
1 bagno 1 bagno

Capannone in vendita

Lodi Vecchio, Via Europa

Descrizione annuncio

COSA SAPERE DELL'IMMOBILE

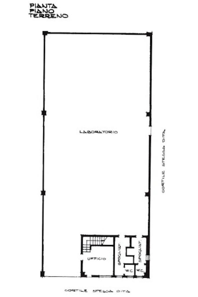
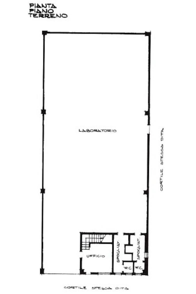
Il capannone proposto in vendita possiede una superficie interna di circa 450 metri quadrati con annessa un'area esterna di 250 metri quadrati.

Si specifica che l'immobile sarĂ  disponibile a partire da gennaio 2027.

DESCRIZIONE E PARTICOLARITA'

L'immobile misura complessivamente circa 450 metri quadrati, il tutto disposto lungo un'unica campata interamente al piano terra e raggiungibile mediante portone d'accesso di circa 4 metri. Internamente la struttura raggiunge un'altezza di 5,5 metri con un'altezza sotto trave di 5 metri circa. Il capannone è servito dagli impianti elettrico e d'illuminazione; completa la soluzione un'uscita di emergenza. All'interno del complesso possiamo infine trovare un servizio igienico privato con annesse comode docce. La proprietà risulta essere recintata e possedere tetto in eternit.

Si specifica che l'immobile sarĂ  disponibile a partire da gennaio 2027.

UBICAZIONE E CONTESTO

La costruzione è ubicata nel Comune di Lodi Vecchio (LO), è facilmente raggiungibile in auto mediante la strada provinciale 140 (SP140) che si collega ai paesi limitrofi e possiede circa venti posti auto PUBBLICI nelle immediate VICINANZE.

Si specifica che l'immobile sarĂ  disponibile a partire da gennaio 2027.

Mostra tutto

Nelle vicinanze

Trasporto pubblico Trasporto pubblico
stazione di Tavazzano
stazione di Tavazzano
1,9 Km
Trasporto pubblico
2,1 Km
SS9 - Via Emilia - ENEL
SS9 - Via Emilia - ENEL
2,8 Km
Scuole Scuole
Gramsci
650 m
Scuola Media "Antonio Gramsci"
690 m
Scuola Elementare "Ada Negri"
730 m
Scuola Primaria Don Lorenzo Milani
1,9 Km
Scuola Media F. Scotti
2,0 Km
Farmacia Farmacia
Farmacia
1,3 Km
Supermercati Supermercati
Lidl
960 m
Crai
1,1 Km
Supermercati
1,2 Km
Bar Bar
Bar Dosso
1,2 Km
A.R.C.I. I Maggio
1,5 Km
Ristoranti Ristoranti
Sapori d'Ogliastra
2,1 Km
Mostra tutto

Caratteristiche

Rif.:
61013163
Piano:
Terra di 1
Totale piani:
1
Posti auto:
20
Condizionamento:
Assente
Ascensore:
No
Mostra tutto
Prezzo Prezzo
€ 140.000
Rata mutuo Rata mutuo
€ 660 / mese
Spese annue Spese annue
€ 0
Proponi il tuo prezzoProponi il tuo prezzo

Classe Energetica

Questo immobile è esente da classe energetica
Anno di costruzione:
1970
Riscaldamento:
Assente

Ti interessa visionare l'immobile?

Fissa un appuntamento  Fissa un appuntamento

Richiedi informazioni

Clicca su Leggi per aprire l'informativa
* Questi campi sono obbligatori

Calcola il tuo mutuo

Semplice e senza impegno
Anticipo

( % )
Mutuo

( % )

pochi semplici passi

inserisci i tuoi dati
Questionario completato
Grazie per aver richiesto un appuntamento senza impegno con un nostro Consulente del Credito e Assicurativo.

Hai inserito correttamente tutti i dati necessari e a breve riceverai una e-mail con un link da convalidare per inviare i tuoi dati.
Affiliato
Avanguardia Industriale Srl
P.zza Don Luigi Savarè, 1 26900 Lodi (LO)

Il nostro staff


  • Lorenzo Alloni
    Collaboratore

  • Nicole Moretti
    Collaboratrice

  • Diana Viorica Polgar
    Collaboratrice

  • Alexandru George Receanu
    Affiliato

  • Deborah Ragusa
    Coordinatrice

  • Erasmo Jesus Silva Quiroz
    Collaboratore

  • Manuel Tonelli
    Collaboratore
P.zza Don Luigi Savarè, 1 26900 Lodi (LO)
Zona: Lodi
Mostra su mappa
Affiliato
Avanguardia Industriale Srl
P.zza Don Luigi Savarè, 1 26900 Lodi (LO)

2026 Tecnocasa Franchising S.p.A. - P. IVA 08365160152 - Via Monte Bianco 60/A 20089 Rozzano (MI). Ogni agenzia ha un proprio titolare ed è autonoma. Privacy policy | Policy utilizzo | Cookie policy