Capannone in vendita

Livraga, Via delle Industrie
€ 600.000
8 locali 8 locali
1170 Mq 1170 Mq
4 bagni 4 bagni

Capannone in vendita

Livraga, Via delle Industrie

Descrizione annuncio

COSA SAPERE DELL'IMMOBILE
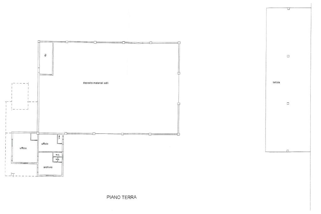
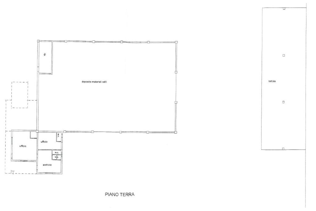
Proponiamo in vendita un capannone avente superficie interna di circa 1.170 metri quadrati con annessa un'area esterna recintata di circa 2.500 metri quadrati circa.

DESCRIZIONE E PARTICOLARITA'
Il lotto complessivo misura circa 1.170 metri quadrati, cosĂŹ suddivisi tra il piano terra e il primo piano:

- Al piano terra troviamo circa 600 metri quadrati di capannone, libero da pilastri, accessibile mediante due portoni di altezza 4,48 mentre internamente la struttura raggiunge un’altezza di circa 6,07 metri con un’altezza sotto trave di 6 metri;

- A seguire, sempre sullo stesso livello, sono presenti circa 88 metri quadrati di spazio direzionale adibiti ad ufficio, nel quale è presente l'impianto di condizionamento;

- Esternamente è presente una tettoia di circa 290 metri quadrati;

- Infine al piano primo, raggiungibile mediante comode scale, vi sono circa 194 metri quadrati adibiti ad appartamento con annesso un servizio igienico privato, anch'esso completo di impianto di condizionamento;

Il capannone dispone poi d’impiantistica elettrica, di videosorveglianza, d’illuminazione e di riscaldamento; completano la soluzione tre servizi igienici privati con annessa area spogliatoio e l’antincendio a idranti. Esternamente lo stabile gode di circa 2.500 metri quadrati di area privata e recintata mediante cancello di 6 metri completo di due accessi carrai e due passi carrai. La proprietà risulta possedere tetto in eternit.

UBICAZIONE E CONTESTO
Il capannone sorge nell’area industriale del comune di Livraga (LO), possiede circa venti posti auto PUBBLICI e dieci posti auto PRIVATI nelle immediate VICINANZE ed è facilmente raggiungibile in auto mediante la strada provinciale 107 (SP107).

Mostra tutto

Nelle vicinanze

Trasporto pubblico Trasporto pubblico
Ospedaletto Lodigiano
Ospedaletto Lodigiano
2,5 Km
Trasporto pubblico
1,3 Km
Orio Litta
Orio Litta
2,4 Km
Scuole Scuole
Scuole
880 m
Supermercati Supermercati
Sma
2,5 Km
Crai extra
2,5 Km
Bar Bar
Bar
2,3 Km
Ristoranti Ristoranti
Trattoria del Cristo
2,5 Km
Osteria San Luigi
2,7 Km
Ristoranti
2,9 Km
Osteria del Popolo
3,0 Km
Mostra tutto

Caratteristiche

Rif.:
61127048
Piano:
Terra di 2
Totale piani:
2
Posti auto:
20
Condizionamento:
Assente
Ascensore:
No
Mostra tutto
Prezzo Prezzo
€ 600.000
Rata mutuo Rata mutuo
€ 2.828 / mese
Spese annue Spese annue
€ 0
Proponi il tuo prezzoProponi il tuo prezzo

Classe Energetica

Questo immobile è esente da classe energetica
Anno di costruzione:
2002
Riscaldamento:
Autonomo
Tipo impianto:
Ad aria
Tipo alimentazione:
Aria

Ti interessa visionare l'immobile?

Fissa un appuntamento  Fissa un appuntamento

Richiedi informazioni

Clicca su Leggi per aprire l'informativa
* Questi campi sono obbligatori

Calcola il tuo mutuo

Semplice e senza impegno
Anticipo

( % )
Mutuo

( % )

pochi semplici passi

inserisci i tuoi dati
Questionario completato
Grazie per aver richiesto un appuntamento senza impegno con un nostro Consulente del Credito e Assicurativo.

Hai inserito correttamente tutti i dati necessari e a breve riceverai una e-mail con un link da convalidare per inviare i tuoi dati.
Affiliato
Avanguardia Industriale Srl
P.zza Don Luigi Savarè, 1 26900 Lodi (LO)

Il nostro staff


  • Lorenzo Alloni
    Collaboratore

  • Nicole Moretti
    Collaboratrice

  • Diana Viorica Polgar
    Collaboratrice

  • Alexandru George Receanu
    Affiliato

  • Deborah Ragusa
    Coordinatrice

  • Erasmo Jesus Silva Quiroz
    Collaboratore

  • Manuel Tonelli
    Collaboratore
P.zza Don Luigi Savarè, 1 26900 Lodi (LO)
Zona: Lodi
Mostra su mappa
Affiliato
Avanguardia Industriale Srl
P.zza Don Luigi Savarè, 1 26900 Lodi (LO)

2026 Tecnocasa Franchising S.p.A. - P. IVA 08365160152 - Via Monte Bianco 60/A 20089 Rozzano (MI). Ogni agenzia ha un proprio titolare ed è autonoma. Privacy policy | Policy utilizzo | Cookie policy