Capannone in vendita

Guardamiglio, Ss 9 Via Emilia
€ 1.370.000
11 locali 11 locali
3420 Mq 3420 Mq
7 bagni 7 bagni

Capannone in vendita

Guardamiglio, Ss 9 Via Emilia

Descrizione annuncio

INFORMAZIONI PRINCIPALI

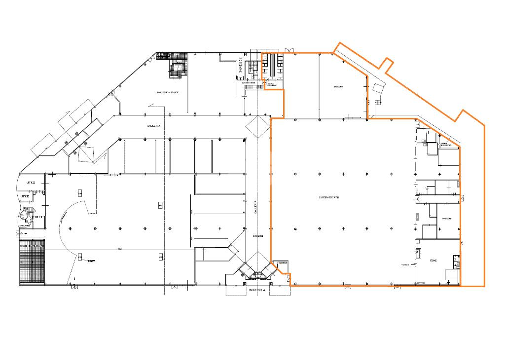
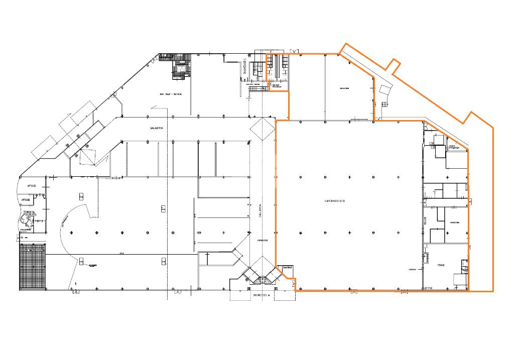
Il capannone commerciale proposto in vendita possiede una superficie interna di circa 3.420 metri quadrati con annessa un'area esterna privata di 1.010 metri quadrati circa.

Si specifica che l’immobile è libero e disponibile da subito.

DESCRIZIONE & PARTICOLARITÀ

L'immobile possiede una metratura complessiva di circa 3.420 metri quadrati, il tutto disposto interamente al pian terreno lungo tre campate con annessi ben sette servizi igienici privati, di cui uno a norma disabili. L'ingresso può avvenire mediante sei portoni d’accesso di altezza 2,8 metri mentre internamente la struttura, avente pilastri, raggiunge un'altezza di 5,5 metri circa con un’altezza sottotrave di circa 5 metri. Il complesso è dotato di predisposizione per tutti gli impianti necessari quali riscaldamento, condizionamento e per l’impiantistica elettrica, d’illuminazione e d’allarme; completa la soluzione una predisposizione per la canna fumaria e il cablaggio. Il capannone commerciale dispone poi di un sistema antincendio composto da antincendio ad idranti, rilevatori antifumo, illuminazione e uscita d’emergenza. Esternamente la struttura dispone di circa 1.010 metri quadrati di area privata, completo di un accesso carraio e un passo carraio. La proprietà risulta essere a norma per l’accesso disabili.

Si specifica che l’immobile è libero e disponibile da subito.

UBICAZIONE & COLLEGAMENTI

Il capannone commerciale sorge nel Comune di Guardamiglio (LO), dispone di circa cento posti auto PRIVATI nelle immediate VICINANZE ed è facilmente raggiungibile in auto mediante la strada statale 9 (SS9 – Via Emilia), principale via di collegamento.

Si specifica che l’immobile è libero e disponibile da subito.

Mostra tutto

Nelle vicinanze

Trasporto pubblico Trasporto pubblico
Trasporto pubblico
2,4 Km
Ricariche auto elettriche Ricariche auto elettriche
Innovenergy
900 m
Scuole Scuole
Scuole
550 m
Farmacia Farmacia
Farmacia Orsi
1,1 Km
Farmacia Dispensario Orsi
2,3 Km
Negozi Negozi
A&O market
730 m
Da Amici
2,3 Km
Bar Bar
Bar
70 m
Ristoranti Ristoranti
taverna del gallo
790 m
Smile
2,3 Km
La Veranda
2,7 Km
Mostra tutto

Caratteristiche

Rif.:
61190884
Piano:
Terra di 1
Totale piani:
1
Posti auto:
99
Condizionamento:
Predisposizione impianto
Ascensore:
No
Mostra tutto
Prezzo Prezzo
€ 1.370.000
Rata mutuo Rata mutuo
€ 6.458 / mese
Spese annue Spese annue
€ 0
Proponi il tuo prezzoProponi il tuo prezzo

Classe Energetica

Questo immobile è esente da classe energetica
Anno di costruzione:
1980
Riscaldamento:
Assente

Ti interessa visionare l'immobile?

Fissa un appuntamento  Fissa un appuntamento

Richiedi informazioni

Clicca su Leggi per aprire l'informativa
* Questi campi sono obbligatori

Calcola il tuo mutuo

Semplice e senza impegno
Anticipo

( % )
Mutuo

( % )

pochi semplici passi

inserisci i tuoi dati
Questionario completato
Grazie per aver richiesto un appuntamento senza impegno con un nostro Consulente del Credito e Assicurativo.

Hai inserito correttamente tutti i dati necessari e a breve riceverai una e-mail con un link da convalidare per inviare i tuoi dati.
Affiliato
Avanguardia Industriale Srl
P.zza Don Luigi Savarè, 1 26900 Lodi (LO)

Il nostro staff


  • Lorenzo Alloni
    Collaboratore

  • Nicole Moretti
    Collaboratrice

  • Diana Viorica Polgar
    Collaboratrice

  • Alexandru George Receanu
    Affiliato

  • Deborah Ragusa
    Coordinatrice

  • Erasmo Jesus Silva Quiroz
    Collaboratore

  • Manuel Tonelli
    Collaboratore
P.zza Don Luigi Savarè, 1 26900 Lodi (LO)
Zona: Lodi
Mostra su mappa
Affiliato
Avanguardia Industriale Srl
P.zza Don Luigi Savarè, 1 26900 Lodi (LO)

2026 Tecnocasa Franchising S.p.A. - P. IVA 08365160152 - Via Monte Bianco 60/A 20089 Rozzano (MI). Ogni agenzia ha un proprio titolare ed è autonoma. Privacy policy | Policy utilizzo | Cookie policy