Negozio in vendita

Genivolta, Via Roma
€ 420.000
12 locali 12 locali
595 Mq 595 Mq
7 bagni 7 bagni

Negozio in vendita

Genivolta, Via Roma

Descrizione annuncio

COSA SAPERE DELL'IMMOBILE

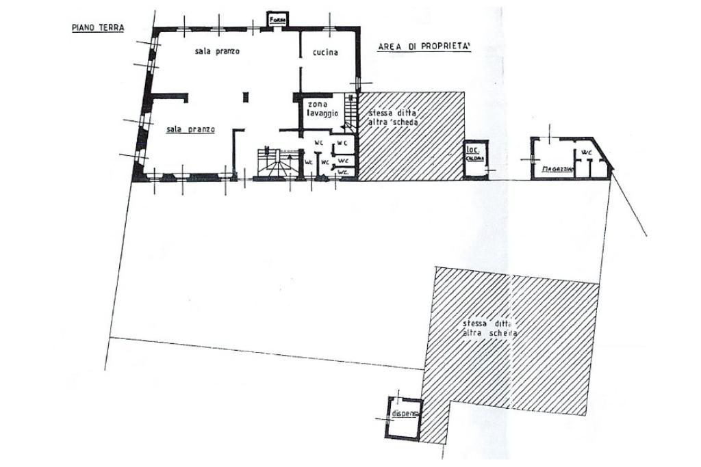
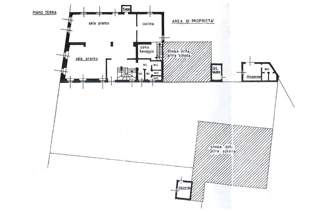
La soluzione proposta in vendita possiede una metratura totale di circa 595 metri quadrati interni, distribuiti su piĂš livelli di un edificio di tre piani, con annessa vasta area esterna privata di circa 2.000 metri quadrati.

DESCRIZIONE E PARTICOLARITA'

Il negozio in vendita dispone di una metratura complessiva di circa 595 metri quadrati, di cui 77 metri quadrati circa adibiti a magazzino al piano terra, il tutto disposto su tre piani. Internamente l'immobile raggiunge un’altezza minima di 2,75 metri e una massima di 3,20 metri, è suddiviso in circa dodici locali con annessi ben sette servizi igienici privati suddivisi sui tre livelli. La struttura è dotata di tutti gli impianti necessari quali riscaldamento e condizionamento, ambedue centralizzati, elettrico, d’illuminazione e d’allarme; il tutto completato da un sistema antincendio composto da antincendio a idranti, luci e uscita d’emergenza. Il locale commerciale presenta inoltre due canne fumarie con relativa aspirazione fumi. La proprietà risulta essere in una posizione ad angolo e godere di comodo doppio ingresso.

UBICAZIONE E CONTESTO

Il locale commerciale è ubicato nel Comune di Genivolta (CR), possiede circa duecento posti auto PRIVATI nelle immediate VICINANZE grazie alla grande area esterna privata di circa 2.000 metri quadrati ed è facilmente raggiungibile in auto mediante la strada statale 498 (SS498).

Mostra tutto

Nelle vicinanze

Ristoranti Ristoranti
Ristoranti
660 m
Mostra tutto

Caratteristiche

Rif.:
61167689
Piano:
Su piĂš livelli di 3
Totale piani:
3
Posti auto:
99
Condizionamento:
Centralizzato
Ascensore:
No
Mostra tutto
Prezzo Prezzo
€ 420.000
Rata mutuo Rata mutuo
€ 1.980 / mese
Spese annue Spese annue
€ 0
Proponi il tuo prezzoProponi il tuo prezzo

Classe Energetica

E
E
E
E
E
E
E
E
E
EP globale non rinnovabile:
915.10 kW h/m² anno
EP globale rinnovabile:
128.08 kW h/m² anno
EP invernale del fabbricato:
EP estiva del fabbricato:
Anno di costruzione:
1975
Riscaldamento:
Centralizzato
Tipo impianto:
Ad aria
Tipo alimentazione:
Aria

Ti interessa visionare l'immobile?

Fissa un appuntamento  Fissa un appuntamento

Richiedi informazioni

Clicca su Leggi per aprire l'informativa
* Questi campi sono obbligatori

Calcola il tuo mutuo

Semplice e senza impegno
Anticipo

( % )
Mutuo

( % )

pochi semplici passi

inserisci i tuoi dati
Questionario completato
Grazie per aver richiesto un appuntamento senza impegno con un nostro Consulente del Credito e Assicurativo.

Hai inserito correttamente tutti i dati necessari e a breve riceverai una e-mail con un link da convalidare per inviare i tuoi dati.
Affiliato
Avanguardia Industriale Srl
P.zza Don Luigi Savarè, 1 26900 Lodi (LO)

Il nostro staff


  • Lorenzo Alloni
    Collaboratore

  • Nicole Moretti
    Collaboratrice

  • Diana Viorica Polgar
    Collaboratrice

  • Alexandru George Receanu
    Affiliato

  • Deborah Ragusa
    Coordinatrice

  • Erasmo Jesus Silva Quiroz
    Collaboratore

  • Manuel Tonelli
    Collaboratore
P.zza Don Luigi Savarè, 1 26900 Lodi (LO)
Zona: Lodi
Mostra su mappa
Affiliato
Avanguardia Industriale Srl
P.zza Don Luigi Savarè, 1 26900 Lodi (LO)

2026 Tecnocasa Franchising S.p.A. - P. IVA 08365160152 - Via Monte Bianco 60/A 20089 Rozzano (MI). Ogni agenzia ha un proprio titolare ed è autonoma. Privacy policy | Policy utilizzo | Cookie policy